Выставка «Маяк», В.Новгород
г. В.Новгород, ул. Державина, 21А

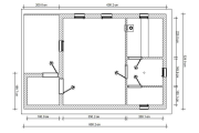
Каркасная баня «Бурже» 8х5,3м с маленькой террасой

Размеры: 5,3х8 м
Площадь: 42,4 кв.м
Доступно в кредит Теперь у нас можно оформить кредит на баню — мы заключили сотрудничество с «Почта Банком». Перейти к расчёту кредита
Подробнее
© Проект является интеллектуальной собственностью и охраняется законом об авторском праве. Свидетельство №019-009093-90-93
Цена под ключ Цена указана за базовую комплектацию
от 1 828 500 ₽
Цена актуальна. Выгружена из 1С 20.05.2026
Обсудить проект

Описание проекта

Баня «Бурже» — это сочетание фирменного стиля и продуманной функциональности. Её легко узнать по округлой крыше и высоким панорамным окнам, которые наполняют интерьер светом и создают ощущение простора.

Подробнее

Размер бани — 5,3 × 8 метров, из которых 3,3 × 2 метра занимает уютная терраса — идеальное место для отдыха после парной или чашки чая на свежем воздухе.

Далее — тамбур 2 × 2 метра, удобное пространство для переобувания и хранения одежды. Он защищает комнату отдыха от холода и грязи, сохраняя чистоту и уют внутри.

Комната отдыха — просторная (3 × 5,3 м) и светлая, с большими окнами и возможностью разместить диван, обеденную зону или даже мини-кухню.

Из неё вы попадаете в помывочную, где по всей площади установлен герметичный пластиковый поддон — практичное и долговечное решение для влажных помещений.
Из помывочной ведут две двери: налево — в парную, направо — в санузел, где удобно размещается всё оборудование для душевой системы.

Проект можно выполнить как в каркасной технологии, так и из бруса — в зависимости от ваших предпочтений по материалу и внешнему виду.

«Бурже» — это баня, в которой каждая зона продумана до мелочей: уютная, современная и по-настоящему комфортная.

Комплектации и цены

Стоимость объекта зависит, главным образом, от выбранного материала. Здесь приведены цены на базовую (стандартную без дополнительных опций) комплектацию в разных исполнениях.

Баня каркасная доска в нахлест без душа
 
от 1 828 500 ₽
Бурже из бруса 140х140 клееный брус елки(сосны)
 
Уточняйте

В базовую комплектацию входят:

Общая комплектация

Лучший способ понять, какие бани мы строим и как они выглядят изнутри — заглянуть в нашу Галерею выполненных работ. Там собраны реальные объекты, по которым сразу виден уровень исполнения и детали отделки.

Раньше мы публиковали подробные списки комплектующих под каждым проектом, но со временем поняли, что это только путает. Одинаковые с виду бани могут сильно отличаться по «начинке» под конкретные задачи заказчика. Чтобы не вводить вас в заблуждение общими цифрами, мы перешли на индивидуальные расчеты.

Просто напишите нашему менеджеру — он подготовит актуальную смету именно под ваш запрос, где будет прозрачно расписано, что входит в стоимость, а на чем можно сэкономить или, наоборот, усилить.

Рассрочка

Для жителей Новгородской области и Великого Новгорода, и других регионов, доступна беспроцентная рассрочка на полгода при первоначальном взносе 50%.

Только при условии личного обращения в наш офис. Дистанционно оформить нельзя. Предложение не суммируется с другими акциями.

Подробности уточняйте у Менеджеров.

Доска в нахлест

Сухая, строганная, покрашенная и только потом установленная доска внахлест одна на другую, (если это баня «Барн», то обшивается имитацией бруса), если баня «Кубота», то планкеном.

Печь KOSTЁR DS Rain 16K

Печь с парогенератором KOSTЁR DS_Rain16К, мы сделали тест-драйв и записали видеообзор на «Костёр» RAIN.
Сделана из котловой стали 4 мм, верхние элементы из нержавеющей стали что делает печь практически не убиваемой

Негабарит: сборка на участке

Сборка входит в стоимость

Пологи сорт А

Доска для пологов и трапиков из осиновой вагонки сорта «А» (идеальная бессучковая доска).

Электропроводка

Входит в стоимость. Включает светильники в каждом помещении, вводный автомат, негорючий провод в парную, розетка в комнате отдыха (в банях-бочках розетка устанавливается по требованию).

Покраска бани снаружи

В два слоя.

Межкомнатные двери

Внутренние двери стеклянные сатин матовый (мы делаем двери на заказ толщиной 8мм, а не 6 как большинство, уж очень они хлипкие из 6мм)

Вентиляционный клапан

Новая уникальная вентиляция нашей разработки или старинный поворотный деревянный клапан, смотрите фото и видео перейдя по ссылке

Мебель в баню

Массивная мебель нашего производства, основа из фанеры, верх из массива, стол и две скамейки, есть табуреты но их нужно оговаривать отдельно.

Металлочерепица

Входит в стоимость с ветровыми планками, цвет на выбор

Дымоход

Дымоходы из нержавеющей стали 0,8 мм, трубы сендвичи

Душевой поддон

Установлен в помывочном отделении пластиковый герметичный поддон с сифоном для слива воды, в него вложен деревянный трапик (в планировках, где подразумевается душевое помещение). Ссылка на фото и видео

Внутренние стены

Обшиты сухой вагонкой сорта «АБ» толщиной 16 мм.

Стены парной

Из осиновой вагонки А класса (бессучковая)

Окна

Деревянные окна: настоящие деревянные стеклопакеты заводского качества с хорошей фурнитурой. ссылка на видео

Доска половая

Монтируем пол из сухой шпунтованной доски 28мм толщиной

Дополнительно можно заказать (опции)

Эти опции не входят в стандартную комплектацию. Они существенно повышают комфорт, но не являются обязательными. Хотите чуть больше роскоши и уюта? Смело добавляйте эти приятности к заказу!

Басту

Вентиляция баста, смотрите цену, фото и видео, но уже ставим нашу компактную Димасту, Вентиляция в бане которая сделает нахождение в парной более комфортным, ссылка на видео и второе видео у новой бане бочке

Доставка

Рассчитывается индивидуально

Вешалка "Спилы" №4

Вешалка в баню, очень красивый вариант, сделает баню уютнее ссылка на все фото и видео

Сетка каменка

Дополнительное место под камни которые также хорошо нагреются как и в печи и будут аккумулировать тепло, смотрите мой видео обзор и уже можно заказать каменку из нержавейки нашего производства. видео по ссылке

Бак на трубе

Для горячей воды, самоварного типа, устанавливается над печью на трубе, объём 55 л. , видео о пользе бака на трубе, мое мнение

Врезной замок

Стоимость установки уточняйте у менеджера

Печь с закрытой каменкой «ГИД 4»

Печь оснащена внутренней закрытой ёмкостью, куда закладываются камни. Это позволяет нагревать камни до 400-500С. Тогда получается мелкодисперсный перегретый пар, который легко переносится и не так экстремально повышает влажность в парной. Подробнее о моделе.

Такую печь за дополнительную стоимость можно установить в практически любую баню. Пожалуйста, ознакомьтесь с видео.

Люстра квадратная «Капли»со стеклом

Можно заказать такую люстру вместе с баней. Фото и описание люстры «Капли».

Светильники на террасу или дорожку

Можно заказать светильник нашего производства для террас или дорожек, Ссылка на фото и видео и цену

Обливное устройство

Можно заказать установку обливного устройства «Водопад» в помывочное помещение, фото видео и стоимость смотрите по ссылке

Дверь металлическая

Посмотреть пример установленной двери можно по ссылке

Вентиляция в душевой

Советуем ставить в душевом помещении вентиляционный клапан, смотрите видео с моим опытом

Приточная вентиляция Второе дыхание

Приточная вентиляция для тех кто любит парится лежа,фото и видео

Приточная вентиляция под печью

Делается под печью для получения свежего воздуха в парной под печью, ссылка на видео

Набор "Первый"

Набор первой необходимости в бане, Тазик, ковшик, подголовник, вешалка, полочка угловая. Цена набора и полные фото по ссылке (полочка угловая не очень вписывается в бочки)

Поддон во всю парную

Можно и нужно заказать в парной пластиковый пол во всю парную с деревянными трапиками, Ссылка на фото и видео

Дверь ПВХ Усиленная

Наиболее хороший и долговечный вариант двери, включает уже полноценный замок с ручкой, потребуется доплата, точнее стоимость можно у знать у менеджера. Ссылка на фото и видео двери

Рисунок между полками

Расстояние между полками можно сделать с орнаментом из тех же досок что и пологи, подробно посмотрите перейдя по ссылке

Спинка в парной

Установить удобную и красивую спинку в парной, фото и видео на странице по ссылке

Декоративные светильники

Установить красивые светильники, которые украсят вашу парную, ссылка на видео, а также можно сделать раздельное включение под полками и верхними светильниками ссылка на видео.

Камни в печку

За дополнительную плату привезем, марку и цены уточняйте у продавцов

Свайно-винтовой фундамент

Установка винтовых свай может осуществляться как нашими специалистами, так и подрядчиками — в зависимости от времени года и обстоятельств.

Поможем с расчётами и выбором

Требуется подробная консультация? Свяжитесь с нашими менеджерами. Мы подготовим индивидуальную смету, уточним сроки изготовления и проконсультируем по доставке в ваш регион. Ваша баня начинается с простого разговора!

Олег Замятин

Менеджер выставки «Мега»

Выставка «Мега» расположена по адресу:

г. С.-Петербург, Мурманское ш. 1, 12-ый км, ТЦ МЕГА на Дыбенко (эксподом №17А)

Открыто ПН, ВТ, СР, ЧТ, СБ, ВС с 9:00 до 18:00. ПТ — выходной

Визит только по предварительной договорённости с менеджером!

+7 (962) 680-36-27

perevoznyebani@yandex.ru

Сергей Суслов

Менеджер выставки «Маяк»

Выставка «Маяк» расположена по адресу:

г. В.Новгород, ул. Державина, 21А

Открыто Вт, Ср, Чт, Пт и Сб с 10 до 19 в офисе. Пн и Вс выходные.

Визит только по предварительной договорённости с менеджером!

+7 (905) 292-15-30

perevoznyebani@yandex.ru

Вам могут понравиться эти проекты

Цена по запросу
Цена по запросу
© Проект является интеллектуальной собственностью и охраняется законом об авторском праве. Свидетельство №019-009093-90-93